Wohnpark mit 68 Wohnungen und Tiefgarage, mit geordnetem Atriumgarten
Photo
Wohnpark mit 68 Wohnungen und Tiefgarage, mit geordnetem Atriumgarten
Photo
Mehrfamilienhaus mit 10 Wohnungen und Tiefgarage - Kandó Strasse, Vác
Photo
Doppelhaus mit gemütlichen Wohnungen - 2 x 130 m2 Wohnung + 2 x 20 m2 Garage
Photo
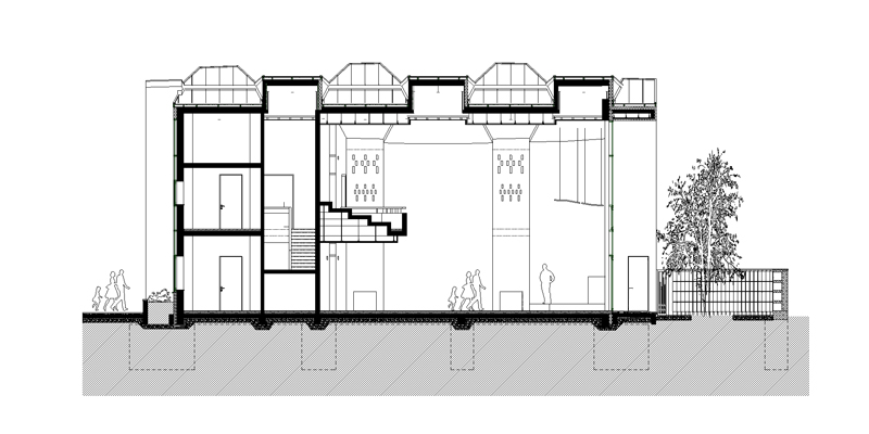
Kirche der Helden - Zeitgenössische Reformationskirche, Vác - 200 Sitzplätze
Photo
Kirche der Helden - Zeitgenössische Reformationskirche, Vác - 200 Sitzplätze
Photo
Kindergartenkomplex für 9 Gruppen, mit Familienberatung
Photo
Passivhaus ( A+) in Hanglage - 296 m2 Wohnfläche + 44 m2 Garage
Photo
Niedrigenergiehaus ( A ) für Großfamilie - 350m2 Wohnfläche + 48m2 Garage
Photo
Niedrigenergiehaus ( A ) für Großfamilie - 350m2 Wohnfläche + 48m2 Garage
Photo
Niedrigenergiehaus ( A ) für Großfamilie - 350m2 Wohnfläche + 48m2 Garage
Photo
Einfamilienhaus in steiler Hanglage, mit Wellness-Etage - 160 m2 Wohnfläche + 44 m2 Garage + 160 m2 Wellness
Photo
Einfamilienhaus in steiler Hanglage, mit Wellness-Etage - 160 m2 Wohnfläche + 44 m2 Garage + 160 m2 Wellness
Photo
Einfamilienhaus in steiler Hanglage, mit Wellness-Etage - 160 m2 Wohnfläche + 44 m2 Garage + 160 m2 Wellness
Photo
Villa mit Aussicht auf den Berg Visegrád und das Donauknie, mit Schwimmbad - 503 m2 Wohnfläche + 42 m2 Garage
Photo
Villa mit Aussicht auf den Berg Visegrád und das Donauknie, mit Schwimmbad - 503 m2 Wohnfläche + 42 m2 Garage
Photo
68 m2 Gallmeyergasse 7, 1190 WIEN
Photo
62 m2 WOHNUNGSSANIERUNG 1190 WIEN
Photo
70 m2 WOHNUNGSSANIERUNG 1130 WIEN
Photo

Kirche der Helden - Zeitgenössische Reformationskirche, Vác - 200 Sitzplätze

Planung: 2010-2011

Stadtmuseum Vác / Memento Mori

Planung: 2013 Einreichsplan, Ausführungsplan, Bauaufsicht

Ratiolab: 1.200 m2 Gewerbehalle für die deutsche Hersteller von Laborverbrauchs-materiale, hochwertige Kunststoffartikel - wie Pipettenspitzen, Küvetten oder Mikrotestplatten - Vác

Planung: 2013, Vorentwurf, Einreichsplan

Kindergartenkomplex für 9 Gruppen, mit Familienberatung

Planung: 2010

Korall Logistikhalle : 1.400 m2 Lager + Verwaltungsgebäude für die größte Lebensmittelhandlung in Vác

Planung: 2012 - 2013 Vorentwurf, Einreichsplan, Ausführungsplan

Squashzentrum mit 3 Spielfeldern und 4 Wohnungen im Dachgeschoss

Planung: 2004

8 Luxuschalets mit Wellnessbereich Mösern bei Seefeld, Tirol

Planung: 2016, Vorentwurf